Autohäuser
2000-2002

Dr.-Loeb-Caldenhof-Str. 11, 59069 Hamm/ Westf.
Auto Mertens GmbH

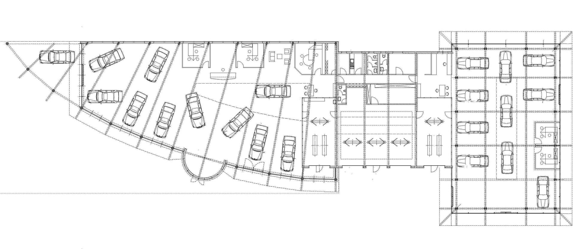
Neubau von 2 Autohäusern mit Gebrauchtwagenplatz, NGF Ford Autohaus 1.650 m², NGF Jaguar/ Landrover Autohaus 1.265 m², Architekt 1-7 der HOAI, sowie Projektsteuerung mit Koordinierung der Fachplaner und Einrichter

Beplanung von 22.000 m² Grundstück für die Präsentation von drei Automarken (Ford, Landrover und Jaguar), einschl. Ausstellungshallen, Büros, Lager und Werkstätten

umfangreiche Vor- und Variantenuntersuchungen zu den Baukörpern;
Abstimmung mit dem zuständigen Stadtplanungsamt (B-Plan)