Kinder- und Jugendheim Sigrön
März 2015 bis März 2016

Sigrön Nr. 21
19336 Bad Wilsnack OT Sigrön
Stiftung -Großes Weisenhaus zu Potsdam- Breite Straße 9a in 14467 Potsdam

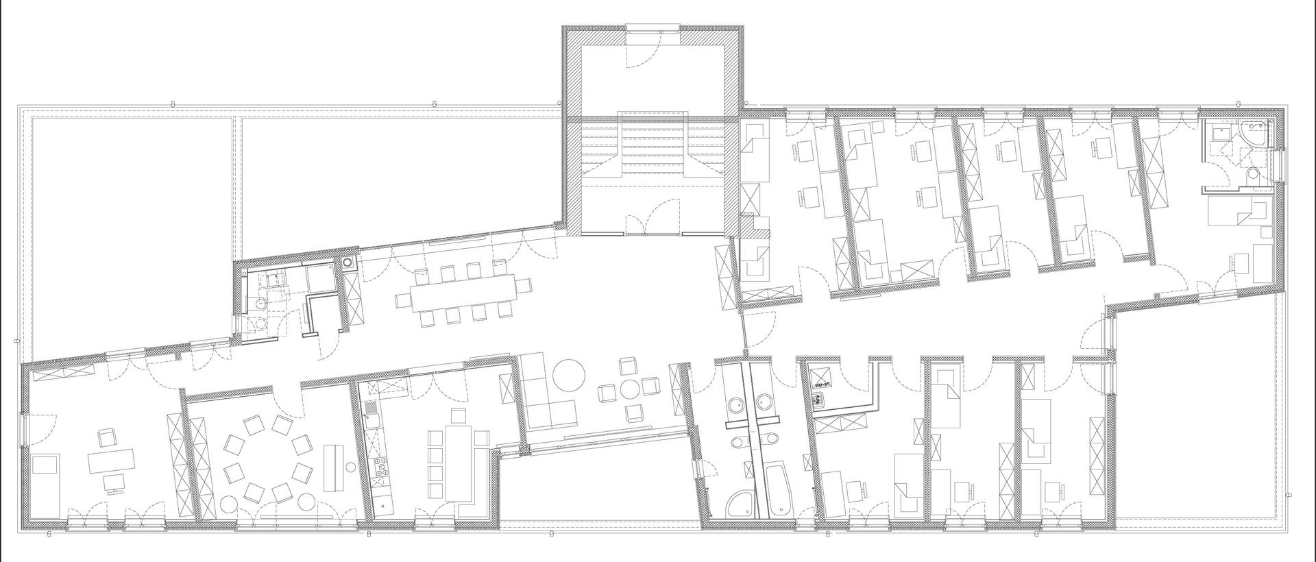
Kinder- und Jugendheim Sigrön, Umbau/ Modernisierung/ Instandsetzung ehemaliges Schulhaus Sigrön Nr. 21, Wohngruppe EG 330 m², Wohngruppe OG 325 m², Verwaltung 105 m², 5-9 der HOAI

Sanierung und Umbau des ehemaligen Schulgebäudes zu einem Kinder- und Jugendheim mit zwei voneinander getrennten Wohngruppen, jeweils im Erdgeschoss und im Obergeschoss.
Getrennt von den Wohngruppen wird der südliche Bereich des Erdgeschosses zusätzlich zur Unterbringung der Verwaltung hergerichtet.
Das neue Obergeschoss wird als leichte Konstrukton in Holztafelbauweise errichtet. Großflächige Glasfronten sowie ein aufgesetztes Staffelgeschoss sorgen für eine großzügige Belichtung.
Das neue Obergeschoss nimmt nur einen Teil der Grundfläche ein. Durch entsprechende Rücksprünge enstehen von einander getrennte Flachdachbereiche sowie eine auf der Südwestseite befindliche Dachterasse. Den oberen Abschluss des Staffelgeschosses bildet ein Flachdach mit geringer Neigung und großzügigem Dachüberstand.

Das Dachgeschoss des alten Schulgebäudes wurde bis auf Oberkante Decke EG abgebrochen. Das bestehende Treppenhaus blieb jedoch bis auf die Überdachung erhalten und wurde in das neue Obergeschoss integriert.
Die vorhandene Geschossdecke ist eine sogenannte Rippendecke vom System Ackermann und blieb erhalten.
Um eine Lastabtragung der zahlreichen Stützen der Holzkonstruktion auf die tragenden Wände im EG zu gewährleisten, wurde auf der Geschossdecke ein aufwendiger Balkenrost als Doppelboden verbaut, der zudem die bis zu 10 cm Höhenunterschiede der alten Decken ausgleicht.